REQUEST A TOUR If you would like to see this home without being there in person, select the "Virtual Tour" option and your agent will contact you to discuss available opportunities.
In-PersonVirtual Tour

$ 15
$ 15
Key Details
Property Type Commercial
Sub Type Retail/Stores
Listing Status Active
Purchase Type For Rent
MLS Listing ID 12366485
Year Built 1999
Annual Tax Amount $5
Tax Year 2024
Property Sub-Type Retail/Stores
Property Description
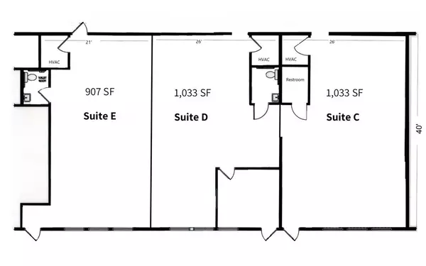
Retail / Office Space 2,973 SF (divisible) Units C,D,E: Currently 2,973 SF divisible into three smaller spaces ranging from 907 SF, 1,033 SF, 1,940 or 2,066 SF. (see layout and possible combinations). Space is currently vanilla box, ready for new layout. Ideal for office, medical or retail uses. Located just off of busy Algonquin Road (Route 62) and just east of the Randal Road intersection. $15 psf NNN with $10.19 psf CAM and Taxes ($5.09 CAM - $5.10 Taxes). Tenant responsible for utilities. Owner is IL Licensed Real Estate Broker
Location
State IL
County Mchenry
Area Lake In The Hills
Zoning COMMR
Interior
Cooling Central Air
Fireplace N
Building
Dwelling Type Retail/Stores

© 2025 Listings courtesy of MRED as distributed by MLS GRID. All Rights Reserved.
Listed by Heather Schweitzer of Premier Commercial Realty
GET MORE INFORMATION

Mike Machlet
Partner







